シャープなデザインでコンパクト設計。取付ネジが露出しないので外観がスッキリします。
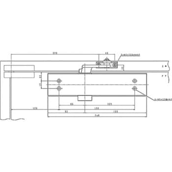
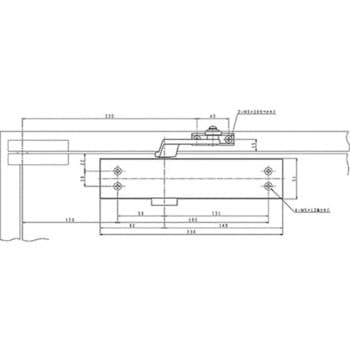
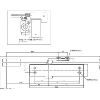
豊富な製品で様々なドア、枠形状に対応。#7001~7003、#7004・7005、#7006・7007はそれぞれ取付板が共通。
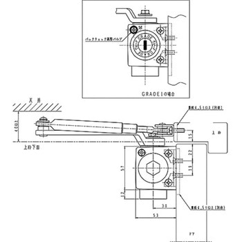
閉扉速度調整は3バルブ方式。 ドアを確実に閉鎖するラッチング機能付。
ストップ角度はパラレル型が70°~180°、 スタンダード型が70°~120°の任意の角度に設定可能。
出荷時、バックチェック機能及びディレードアクション機能は効くように設定しています。調整が必要な場合は、各々のバルブを回して調整して下さい。
左右兼用タイプ。本体を上下転倒し、閉扉速度調整バルブを吊元側に向けて使用して下さい。


